Motionblinds R+T Stuttgart
Messe Stuttgart D | februari 19-23 2024
Dit project is het ontwerp voor de stand van Motionblinds. Het is de lancering voor Motionblinds als merk. De stand stond op de R+T in Stuttgart. Een beurs voor zonwering en raamdecoratie. 
De locatie van de stand is uniek. In het Atrium van de Messe in Stuttgart. De aankomsthal van de evenementenhal. Alle mensen die door de toegangspoorten komen zien de stand. De enige stand op deze locatie, voordat je de andere hallen inliep.
Motionblinds Experience
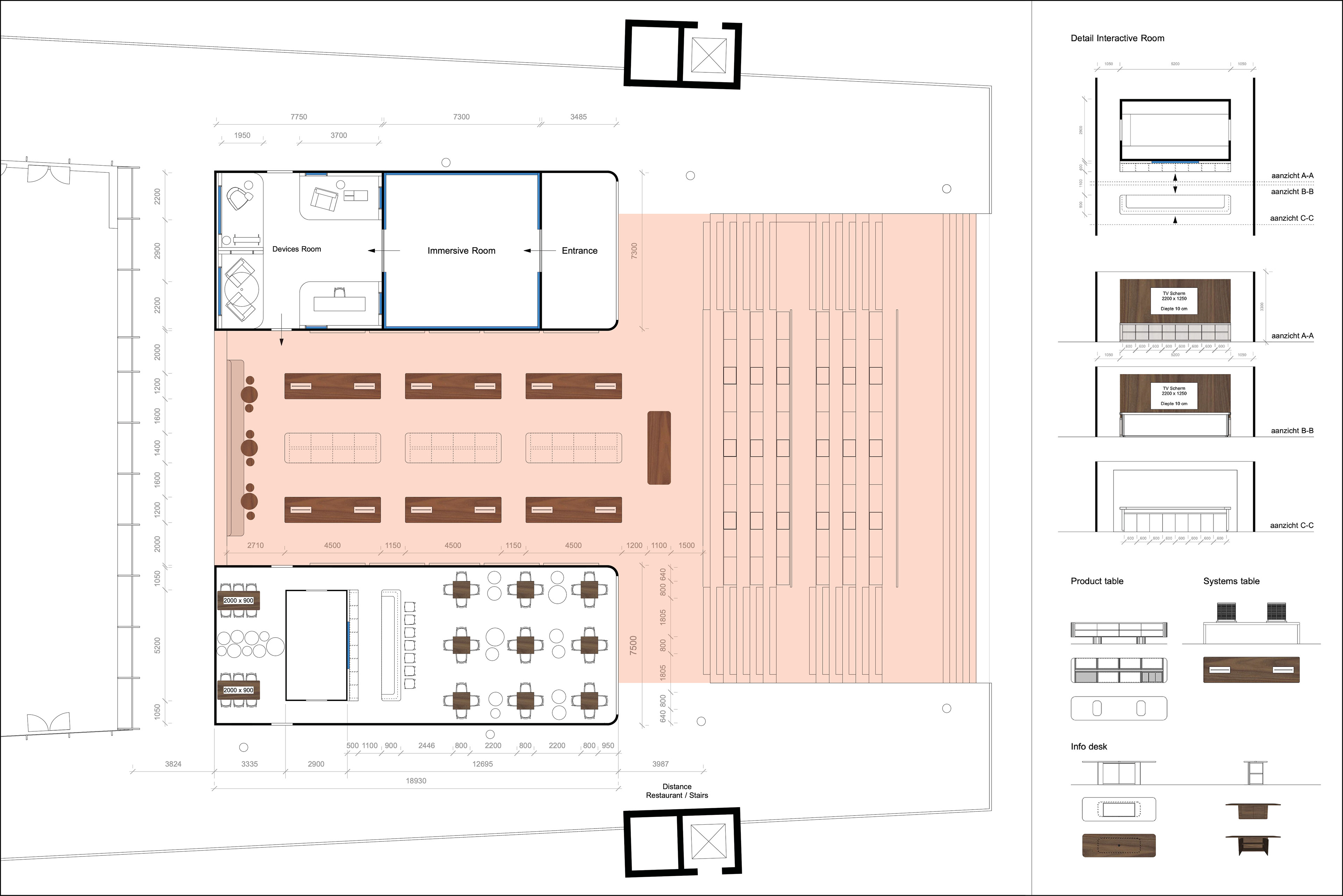
Motionblinds is een merk van Coulisse en richt zich op slimme raamdecoratie die eenvoudig te bedienen is via een app. Op de stand maken bezoekers kennis met Motionblinds via de Motionblinds Experience.
De experience start in een ontvangstruimte met een Holobox, waarin de CEO’s het project introduceren. Daarna volgt een immersive room met een 360° video waarin de toepassingen van Motionblinds gedurende de dag worden getoond.
Aansluitend bezoeken bezoekers de Devices Room, waar Smart Home-oplossingen in vier realistische opstellingen live worden gepresenteerd.
Product Area
De centrale ruimte is de Product Area. Op de eiken houten tafels staan frames met verschillende producten en oplossingen gepresenteerd. Centraal staan witte ladeblokken. Deze zijn op twee manieren ingericht. Ze worden gebruikt voor collectieboeken met alle stofcollecties. Daarnaast word er ingezoomd op alle technische oplossingen. Je kan in de ladeblokken alle opties en onderdelen zien voor de producten. Ingelegd in foamblokken.
Restaurant
De ruimte links is het restaurant. Voor het zakelijk contact is dit de ruimte om elkaar te ontmoeten. Je kan hier je koffie halen en meenemen over de hele stand. Of heelijk dineren. Achter de keuken zijn twee vergaderplekken. Bewust achter de keuken voor een meeting in een rustige setting.
Back to Top